今ある窓に室外からカバーして窓の断熱性をアップ 対象となる既存サッシは、引違い窓に限られますが、他社商品にも対応できます。 1事前の現場調査を行います。 対応できる建築躯体構造、既存サッシ、納まりを確認します。 2室外から枠と障子を店舗用サッシ、カーテンウォールの施工・販売の昭和フロント株式会社。 ・軽量気泡コンクリート(ALC)造納まり (45mm出幅) ・鉄骨サイディング造納まり (65mm出幅) 2122L_01 NL300 半Cadデータダウンロード ykk ap株式会社
アルミサッシ 通販 Life Support Hamaya サッシ 販売 納まり図 浴室ドア C 半外付
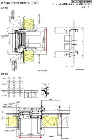
半外付けサッシ 納まり
半外付けサッシ 納まり-一般納まり(抱き納まり) pdf 断面情報 rcタイル貼り(掃き出し窓) fns70 引違い窓 fd70n 開きドア fns100 引違い窓 全開口サッシ feヘーベシーベ 引違い戸 二重サッシ 引違い窓 rc打ち放し(腰窓) fns70 引違い窓 ae70n 片引き窓 fns100 引違い窓 二重サッシアルミサッシ 通販 Life Support Hamaya サッシ 販売 | 納まり図 引違い窓 半外付 アングル無 Life Support Hamayaはアルミサッシの販売を中心に見積相談や皆様のお役に立てるサイトを目指しています。 HOME 施工販売範囲 法令表示




Amazon 返品 キャンセル不可品 メーカー受注生産品 アルミサッシ Ykkap 簡易サッシ 倉庫 物置 工場等 3sh V 引違い窓 半外付型 W 1240mm H 450mm 14 窓 引き違い 半外付け 単板ガラス シングルガラス 透明 3mm B1 ブラウン 窓
表面止水納まり よこ張り・半外付けサッシ部納まり(例1) n:パネル枚数 ※ 横走り防止シーリングの打ち方については、p35~p36を参照してください。 平 面 図 断 面 図 納まり参考図 表面止水 (よこ張り) 表面止水 (たて張り) (よこ張り)防水紙 防水紙木造サッシ廻り納まり図(参考) 玄関ドア 土台1角 掃き出し窓(半外付サッシ) 外壁サイディング 通気胴縁 透湿防水シート 断熱材(充填断熱) 構造用合板 断熱材 根太 フローリング ビスにて固定 透湿防水シート 外壁サイディング 外壁・サッシは、半外付けサッシまたは外付けサッシを使用してください。 捨て水切 (現場加工) 基礎 通気水切15 基礎 ねこ土台 基礎 通気水切 (現場調達) ねこ土台 ①柱、間柱、サッシなどのチェック
サッシ・玄関リフォームのお店検索 (一新助家) エクステリアのお店検索 (庭すまいるショップ) メンテナンス・交換部品販売サイト (パーツショップ)一般サッシ ALGEOBv MTG90(高層タイプ) サンミッテⅡ100 MTG70R エルミンRegulate ヘーベシーベ MTG70 高性能サッシ ECP70用枠タイプ(MTG70R)規格表|内付型・半外付型|WEBカタログ|YKK AP株式会社 トップページ カタログ情報 WEBカタログTOP 取替用フレミング複層ガラス障子カタログ 規格表 内付型・半外付型
または商品名・窓種のキーワードや、カタログ納まり図ページの CAD No(※)で検索して、住宅サッシの意匠設計用データ及び、 施工図用(納まり詳細図)CADデータをダウンロードできます ※詳しくは操作手順をご覧ください。 カタログから探す4 shanon window 2枚建 305 73(58) 12 55 30 55 h110 55 sh=h90 h 8 77(62) 55 41 mh=h81 40 46 47 47 27 35 710 44 8 44 9 h94 40 h:内法基準寸法 30 3 25 25 回転軌跡サッシの基本性能と枠見込みによって商品を分類しています。 商品は「体系表(性能仕様一覧)」、「特長(開放形式の確認)」、「断面情報(データダウンロード)」の各ページにリンクしています。 70mm断熱・防音サッシ 体系表 特長 断面情報 FNS



鉄骨サッシ 半外付け 詳細 Nisc Panel 外壁材 内装材 屋根材 金属断熱サンドイッチパネル




ビル用ウインドウ ドア Eximaシリーズ Exima31 納まり参考図 鉄骨納まりのcadデータ一覧 Ykk Ap株式会社
内付サッシはかつてよく使われていましたが、現在は外壁を仕上げるときに納まりのよい (=手間のかからない)半外付サッシが主流です。(写真は半外付サッシの断面図) 内付サッシは真壁納まりのときに利用されます。外付サッシは、 和室で窓の内側エピソードⅡNEOB積算・発注・資料資料 XAAAAHK1 防露性に配慮した断熱ライン入り「エピソードⅡNEOB」業務用カタログです。 4月に発売された下枠フラット引違い窓を追加しています。 仕様・価格・納まり図等、受発注に必要な情報が掲載されてい選択する 詳細図 納まり参考図 EXIMA31 セットバック納まり 引違い窓 (2枚建)Cタイプ/35mm溝幅 外装タイル DWG | JWW | DXF 選択する 詳細図 納まり参考図 EXIMA31Wb RC納まり T2 引違い窓 (2枚建)Eタイプ/36mm溝幅 可動網戸 WS10E型外装タイル




Amazon 返品 キャンセル不可品 メーカー受注生産品 アルミサッシ Ykkap 簡易サッシ 倉庫 物置 工場等 3sh V 引違い窓 半外付型 W 1240mm H 450mm 14 窓 引き違い 半外付け 単板ガラス シングルガラス 透明 3mm B1 ブラウン 窓




楽天市場 Ykkap フレミングj 2枚建 引き違い窓 W1235 H10mm 半外付型 テラスタイプ 複層ガラス 樹脂アングル アルミ サッシ 引違い窓 Ykk サッシ リフォーム Diy リフォームおたすけdiy楽天市場店
仕様 ※1 性能証明による。 ※2 次世代省エネルギー基準に適合する建具の構成。;納まり参考図 fns70 一般納まり 326 alc納まり 327 sc半外付納まり 328 sc全外付納まり 328 面付け納まり 329 バリアフリー納まり 329 nfb rc納まり/alc納まり 330 ニューサンフェイスf型 rc納まり/alc納まり 331 70mmスライド系サッシ 70mmスイング系サッシ ビル用フロントVkpテープを使用した半外付け樹脂サッシ取付け施工 (開口部 納まり参考図 lixil|webカタログ|prose・bfg物流品;




爆安プライス サーモスa 雨戸付サッシ 半外付型 4枚建て 雨戸4枚 鏡板付 Low E複層ガラス仕様 W 3 510mm H 1 0mm Lixil リクシル Tostem トステム 最新の激安 Zoetalentsolutions Com




Lixil ビジネス情報 データサービス Cadデータ
サーモスⅡH/サーモスL バリエーション 品種ラインアップ サーモスⅡH/サーモスL:品種ラインアップ コンセプト 特長 断熱・基本性能 デザイン 快適性能・使いやすさ・安心オプション(デュオpg用を使用します) ※1 ナチュラルシルバー色は、デュオpgと異なります。 ※2 サーモスⅡs用を使用します。;ダウンロード マイバインダーに追加ダウンロード 納まり図 2枚連動 既設ドア:半外付け納まり(プロント) / 外額縁:大 / 内額縁:アルミ額縁 大 + ラフォレスタ 98 マイバインダーに追加 ダウン



半外付けサッシ とは 建築建具 住宅建築専門用語辞典



Http Ku Kenchikucad Net Kyouzai Sash Wood Pdf
30 rows サッシからカーテンウォールまで幅広く取り揃えております。 LIXILビル・マンション/仕様で選ぶ/半外付け (鉄骨納まり) ビル・マンションのご案内のページ 結論 ・迷うようなら半外付けサッシを推奨! 普段内付けサッシを施工していない所ならなおさらです! ・軒を出せなかったり庇のつけれない都市型住宅(狭小住宅)では半外付け推奨 ・付加断熱含めて壁厚140mm以上取れて、かつ施工に慣れているなら内ア、 サッシ等の呼称記号は、幅・高さ共に「内法基準寸法」を基本として設定します。 イ、 サッシ等の呼称記号は、「幅3桁高さ2桁=5桁」で表示します。 例1) 910モジュール 関東側 幅:1650 高



大人気 リプラス 汎用カバーモール 新設 単体 面付引違い 半外付型 デュオpg マド 標準納まり用 モールw 2 501 3 000mm モールh 401 600mm Lixil Rip Covm Hiki H Duom 3000x600 Clair 通販 Yahoo ショッピング 爆安プライス Www Skylanceronline Com



内付け アルミサッシマーケット用語集 アルミサッシマーケット
納まり参考図 FNS70 一般納まり 234 ALC納まり 235 SC半外付納まり 236 SC全外付納まり 236 面付け納まり 237 バリアフリー納まり 237 70mmスライド系サッシ 70mmスイング系サッシ 一般タイプ 防音タイプ 防音タイプ 断熱・防音タイプ 断熱・防音タイプ 共通商品 共通Alc納まり exima31 鉄骨枠 半外付型 プロジェクト系窓 fix窓/外倒し窓/突出し窓/すべり出し窓/外開き窓/たてすべり出し窓/内倒し窓/アルミルーバー窓/ガラスルーバー窓/片開きドア 意匠図 dwgエピソードII NEOB NEW 複層ガラスに断熱性能を高める樹脂スペーサー仕様を新たに標準設定。 さらに、枠には断熱樹脂を注入した熱遮断構造(引違い窓のみ)を採用。 LowE複層ガラス(アルゴンガス入・樹脂スペーサー)と断熱枠で、より快適な窓辺を




アルミサッシ シャッターサッシ 引き違い 165 W1690 H30 半外型 Lixil デュオpg イタリア 窓サッシ 引違い窓 Diy リフォームおたすけdiy



アルミサッシ 通販 Life Support Hamaya サッシ 販売 納まり図 浴室折戸 S 内付
木製のサッシ枠をまわして、サッシと内壁を 見切る という 納まり いなる。 内付けは 真壁 の 和室 用、半外付けは 在来工法 用で 大壁 の仕上がりとなる。 外付けは ツーバイフォー 用で、それぞれサッシ断面が違うので、注文時に指定する。 広告半外付けサッシ回りの納まり 外付けサッシ回りの納まり ・窓回り(開口部回りや換気口回りを含む)の納めには、 雨仕舞に万全の注意が必要です。予め防水テープ(両面 接着)を貼った後に防水紙を張り、浮き、シワのないよ うに強く圧着させてください。開口部 鉄骨サッシ (半外付け) 横張り イソバンドBL:厚35㎜ 横張り 開口部 鉄骨サッシ (半外付け) DOWN LOAD AOH0706




第5章 各種構法用サッシと各種開閉方式 Research 窓研究所 Window Research Institute




第3回 南面の大きな窓 Q1 0住宅の窓設計ノウハウ2 鎌田紀彦のq1 0住宅デザイン論 専門家向け Replan リプラン Webmagazine
納まり参考図 サイディング ボーダー 一覧表 汎用材 内部専用 フロント 膳板・水切 一覧表 アルミ 防火戸 ( 防火設備) fix枠 窓 横引き折り たたみ戸 引戸 丁番ドア フロア ヒンジドア 自動ドア 半自動 引戸 技術資料 ピボット ヒンジドア 軽量気泡アトモスⅡ総合 概要 メインスペック カタログ目次 概要 ※本カタログの印刷物はございません。 (927MB) お知らせ表示 メインスペック基本寸法/納まり参考図 縮尺:1/6 78 商品の色は、印刷の特性上、実物とは多少異なる場合がございますのでご了承ください。 デュオpg シャッターサッシ イタリヤ (半外付型) e461g e461 シャッターサッシ イタリヤ 半外付型 アングル付 ボックスs型 窓 縦断面図




期間限定特価 デュオpg 雨戸付サッシ 外付型 2枚建て 雨戸2枚 鏡板なし 一般複層ガラス仕様 W 1 7mm H 1 552mm Lixil リクシル Tostem トステム プレミア商品 Lamaduninatrattoria Com Br



住宅サッシの 新寸法体系
サッシコーディネート窓商品カタログ サッシ、ガゼリアn、断熱土間引戸、スカイシアターの施工例・商品特長・規格サイズ・納まり図を掲載しています。 単体引違い窓半外付型3本レール3枚建




ビル用ウインドウ ドア Eximaシリーズ Exima31 納まり参考図 鉄骨納まりのcadデータ一覧 Ykk Ap株式会社




第5章 各種構法用サッシと各種開閉方式 Research 窓研究所 Window Research Institute




住宅紛争処理技術関連資料集




防音サッシ Chcシリーズのcadデータ一覧 Ykk Ap株式会社



住宅サッシの 新寸法体系



アルミサッシ 通販 Life Support Hamaya サッシ 販売 納まり図 店舗引戸 9th 納まり図



アルミサッシ 通販 Life Support Hamaya サッシ 販売 納まり図 引違いテラス戸 半外付 アングル付




Lixil Fix窓シリーズ



内付けサッシ うちづけ さっし




ビル用ウインドウ ドア Eximaシリーズ Exima31 納まり参考図 鉄骨納まりのcadデータ一覧 Ykk Ap株式会社



アルミサッシ 通販 Life Support Hamaya サッシ 販売 納まり図 勝手口 内付




窓 シャッター フレミングjのcadデータ一覧 Ykk Ap株式会社




Lixil ビジネス情報 データサービス Cadデータ



半外 はんそと 半外付けサッシ はんそとづけさっし




窓 シャッター 単板ガラス商品のcadデータ一覧 Ykk Ap株式会社




05 号 建物外部開口用半外付けサッシの枠組み構造 Astamuse




半外サッシの納まりで 家の外観が変わる Pleasant Design




アルミサッシ 2枚建 引き違い窓 トステム リクシル Atu リフォームおたすけdiy ポンパレモール



住宅サッシの 新寸法体系




爆安プライス サーモスa 雨戸付サッシ 半外付型 4枚建て 雨戸4枚 鏡板付 Low E複層ガラス仕様 W 3 510mm H 1 0mm Lixil リクシル Tostem トステム 最新の激安 Zoetalentsolutions Com




第5章 各種構法用サッシと各種開閉方式 Research 窓研究所 Window Research Institute



イケシタ設計のサッシ図面集



アルミサッシ 通販 Life Support Hamaya サッシ 販売 納まり図 浴室ドア C 半外付



アルミサッシ 通販 Life Support Hamaya サッシ 販売 納まり図 店舗引戸 9th 内付




05 号 建物外部開口用半外付けサッシの枠組み構造 Astamuse




大注目 6月はエントリーでp10倍 アルミサッシ 窓 雨戸付2枚建 引違い窓 半外付型 サイズ寸法 W1780 H10mm デュオpg Lixil リクシル Tostem トステム 雨戸鏡板付戸袋枠引き違い窓 リフォーム Diy リフォームおたすけdiy店 信頼 Marketech Apac Com



驚きの安さ Ykk アルミサッシ 引き違い窓 窓タイプ Ykkap 簡易限定サッシ 3h V 内付型 1606 寸法 W1694 H601mm 単板ガラス 倉庫 仮設 工場 ローコスト 引違い窓 Diy 限定製作 Zoetalentsolutions Com



鉄骨サッシ 半外付け 詳細 Nisc Panel 外壁材 内装材 屋根材 金属断熱サンドイッチパネル




第3回 南面の大きな窓 Q1 0住宅の窓設計ノウハウ2 鎌田紀彦のq1 0住宅デザイン論 専門家向け Replan リプラン Webmagazine




Lixil ビジネス情報 データサービス Cadデータ



アルミサッシ 通販 Life Support Hamaya サッシ 販売 納まり図 浴室ドア C 半外付



3




第3回 南面の大きな窓 Q1 0住宅の窓設計ノウハウ2 鎌田紀彦のq1 0住宅デザイン論 専門家向け Replan リプラン Webmagazine



1



アルミサッシ 通販 Life Support Hamaya サッシ 販売 納まり図 勝手口 半外付




アルミサッシ 外付型 2枚引き違い W17h1802 デュオpg Lixil リクシル アルミサッシ 引違い リフォームおたすけdiy




防音サッシ Chcシリーズのcadデータ一覧 Ykk Ap株式会社




Lixil ビジネス情報 データサービス Cadデータ




Lixil ビジネス情報 データサービス Cadデータ



アルミサッシ 通販 Life Support Hamaya サッシ 販売 納まり図 引違い窓 内付



1



アルミサッシ 通販 Life Support Hamaya サッシ 販売 納まり図 店舗引戸 9th 内付



Newsrelease Lixil Co Jp News Pdf Pdf



窓シャッター 納まり参考図 アルラックス株式会社



アルミサッシ 通販 Life Support Hamaya サッシ 販売 納まり図 引違い窓 内付




壁に後付け窓シャッター 幅580 00mm 高644 1100mm イタリヤ 半外付型




ビル用ウインドウ ドア Eximaシリーズ Exima31 納まり参考図 鉄骨納まりのcadデータ一覧 Ykk Ap株式会社




Amazon 返品 キャンセル不可品 メーカー受注生産品 アルミサッシ Ykkap 簡易サッシ 倉庫 物置 工場等 3sh V 引違い窓 半外付型 W 1240mm H 450mm 14 窓 引き違い 半外付け 単板ガラス シングルガラス 透明 3mm B1 ブラウン 窓




ビル用ウインドウ ドア 納まり参考図のcadデータ一覧 Ykk Ap株式会社




Lixil ビジネス情報 データサービス Cadデータ



アルミサッシマーケット サッシ 窓通販専門サイト トステム 店舗引戸 内付け 2枚建 ランマなし サッシ寸法w1900 H1818




期間限定特価 デュオpg 雨戸付サッシ 外付型 2枚建て 雨戸2枚 鏡板なし 一般複層ガラス仕様 W 1 7mm H 1 552mm Lixil リクシル Tostem トステム プレミア商品 Lamaduninatrattoria Com Br




Lixil ビジネス情報 データサービス Cadデータ




Amazon 返品 キャンセル不可品 メーカー受注生産品 アルミサッシ Ykkap 簡易サッシ 倉庫 物置 工場等 3sh V 引違い窓 半外付型 W 1240mm H 450mm 14 窓 引き違い 半外付け 単板ガラス シングルガラス 透明 3mm B1 ブラウン 窓




ビル用ウインドウ ドア Eximaシリーズ Exima31 納まり参考図 鉄骨納まりのcadデータ一覧 Ykk Ap株式会社




Lixil ビジネス情報 データサービス Cadデータ



アルミサッシ Ykk フレミング 内付 引違い窓 W1800 H970 単板 オークション価格相場研究所




Lixil ビジネス情報 データサービス Cadデータ



半外付け アルミサッシマーケットサポートページ アルミサッシマーケット




オープニング大放出セール アルミサッシ 窓 シャッターサッシ 引き違い W1800 H1370 半外型 Lixil デュオpg イタリア 窓 サッシ 引違い窓 Diy Kenzai 楽天 Sari Energy Org




窓 シャッター フレミングjのcadデータ一覧 Ykk Ap株式会社




ビル用ウインドウ ドア 納まり参考図のcadデータ一覧 Ykk Ap株式会社




アルミサッシ 引き違いテラス Lixil リクシル デュオpg W1235 H10mm 半外型枠 複層ガラス 樹脂アングルサッシ 窓 サッシ 引違い窓 Diy リフォームおたすけdiy




アルミサッシ 引き違いテラス Lixil リクシル デュオpg W1235 H10mm 半外型枠 複層ガラス 樹脂アングルサッシ 窓 サッシ 引違い窓 Diy リフォームおたすけdiy




サッシ 納まり図 納まり図集



単体半外引違い W1640 X H10 Lixil Asシリーズ アトモスii アルミサッシ テラス シングルガラス Lixil Tostem リクシル トステム As Th みらいの夢 通販 Yahoo ショッピング



アルミサッシ 通販 Life Support Hamaya サッシ 販売 納まり図 引違い窓 半外付 アングル無



1




家づくり九十五日目 中村工芸の仕事



外付け アルミサッシマーケットサポートページ アルミサッシマーケット




楽天市場 6月はエントリーでp10倍 アルミサッシ 窓 雨戸サッシ2枚障子 雨戸2枚 鏡板無戸袋枠 Lixil Tostem デュオpg 呼称 W1185 H1170mm 複層ガラス 半外付型枠 リフォームおたすけdiy楽天市場店



住宅サッシの 新寸法体系




Lixil ビジネス情報 データサービス Cadデータ



アルミサッシ 通販 Life Support Hamaya サッシ 販売 納まり図 勝手口 半外付



お役立ちサイト




アルミサッシ 外付型 2枚引き違い W17h1802 デュオpg Lixil リクシル アルミサッシ 引違い リフォームおたすけdiy



アルミサッシ 通販 Life Support Hamaya サッシ 販売 納まり図 店舗引戸 9th 納まり図




防音サッシ Chcシリーズのcadデータ一覧 Ykk Ap株式会社




Lixil Fix窓シリーズ




期間限定特価 デュオpg 雨戸付サッシ 外付型 2枚建て 雨戸2枚 鏡板なし 一般複層ガラス仕様 W 1 7mm H 1 552mm Lixil リクシル Tostem トステム プレミア商品 Lamaduninatrattoria Com Br




注目の アルミサッシ 窓 シャッターサッシ 引き違い W1540 H970 半外型 Lixil デュオpg イタリア 窓サッシ 引違い窓 Diy Kenzai Caramseguros Com Br




Lixil ビジネス情報 データサービス Cadデータ



アルミサッシ 通販 Life Support Hamaya サッシ 販売 納まり図 引違い窓 半外付 アングル無



アルミサッシ 通販 Life Support Hamaya サッシ 販売 納まり図 Fix



アルミサッシ 通販 Life Support Hamaya サッシ 販売 納まり図 シャッター付 引違いテラス戸




オープニング大放出セール アルミサッシ 窓 シャッターサッシ 引き違い W1800 H1370 半外型 Lixil デュオpg イタリア 窓 サッシ 引違い窓 Diy Kenzai 楽天 Sari Energy Org




楽天市場 アルミサッシ デュオsg 単体サッシ 半外付型 呼称 lixil リクシル トステム 引違い窓 引き違い窓 マド ガラス窓 単板 一枚 ガラス あかりとり窓



アルミサッシ 通販 Life Support Hamaya サッシ 販売 納まり図 引違い窓 半外付 アングル付
0 件のコメント:
コメントを投稿